82 Germain Street (Condo 101), Saint John, New Brunswick
INVESTMENT PROPERTY:
Two-level 4-UNIT commercial condominium consisting of the ground floor and second floor within a three-storey building known as THE FAIRWEATHER.
PRICE: $580,000
(PID) 55236830 and Property Account Number (PAN) 6698762.
The condominium is situated at the property identified as PID 10835.

ZONING: CU (Uptown Commercial)
The commercial portion of the building which is listed for sale comprises a 4,884 sq. ft. two-level multi-tenant commercial condominium which has undergone significant upgrades in recent years. The building is conveniently served by a fully functional elevator.
- PLUMBING: Copper and PVC lines with some new Pex-style plumbing.
- HEATING: There is a natural gas furnace with baseboard hot water heaters.
- ELECRICAL: Electrical Breaker panels. Understood to have adequate service for current uses.
- SPRINKLERS: roughed in but not connected (wet system)
NOTE: The property is also subject to the municipal Heritage Preservation By-law. This by-law regulates exterior renovations, in an effort to ensure heritage style and materials are utilized. An owner must obtain a certificate of appropriateness, before proceeding with exterior renovations (facing the street), or new construction.
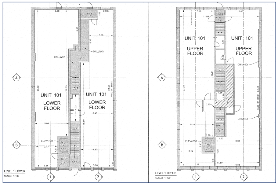
COMMERCIAL SPACE OVERVIEW
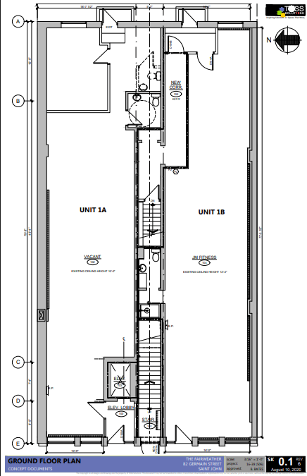
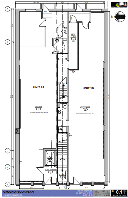
GROUND FLOOR
UNIT 1A – 1,281 SF RETAIL SPACE – VACANT
UNIT 1B – 1,110 SF RETAIL SPACE – LEASED
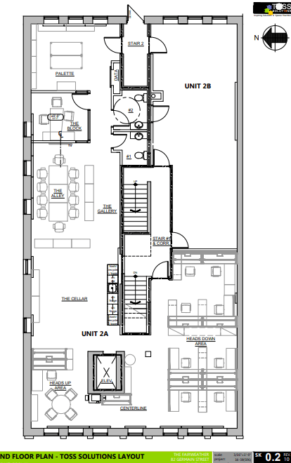
UPPER FLOOR
UNIT 2A – 1,868 SF OFFICE SPACE – LEASED
UNIT 2B – 635 SF OFFICE SPACE – LEASED
DETAILED RENT ROLL & FINANCIALS AVAILABLE TO BUYERS WHO COMPLETE NDA
This property is perfectly suited for two types of buyers:
🔹 Real Estate Investors
Secure a well-located, income-producing commercial condominium. A dependable investment in the heart of Uptown with strong long-term potential.
🔹 Retail Owner-Occupiers
Why rent when you can own? Establish your business in the 1,281 SF vacant street-level unit while building equity in your own property. Enjoy additional income from the other 3 rented units and let your tenants help pay the mortgage.
PHOTO GALLERY






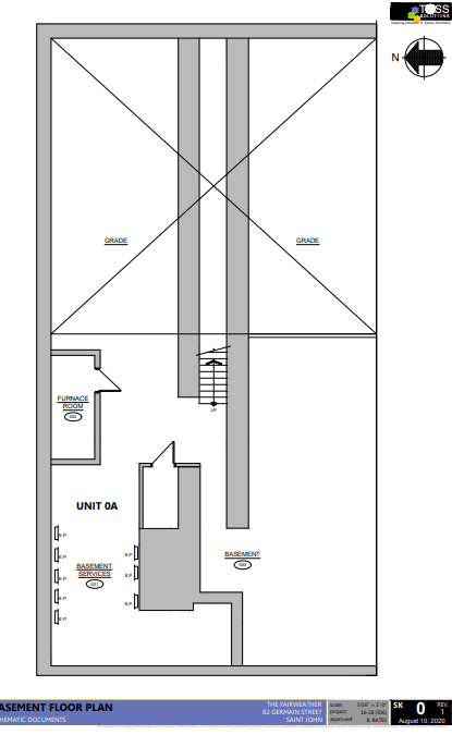
FLOORPLAN



DOWNLOAD FLOORPLANS
PROPERTY HISTORY
This well-maintained heritage property is believed to date back to the late 1800s. The building, previously know as the “Buckley Building” was sold in 2016. The new owners condominiumized the property and converted the top floor to residential for their personal use. The building is significant as one of a collection of commercial, Italianate and Second Empire buildings that were built between 1877 and 1881 after the great fire.
The building is also significant because it housed the office of G. Ernest Fairweather from 1888 until 1920. G. E. Fairweather was a prominent architect and he designed many significant buildings in Saint John. The current owners renamed the building “The Fairweather”.
LOCATION DESCRIPTION
The immediate neighbourhood features a mix of commercial store fronts, office properties and apartments. Over the last decade, led primarily by private developers, the neighbourhood has seen the development of higher quality apartments in repurposed commercial buildings. Well known businesses nearby include the highly acclaimed Italian by Night, the beloved Feel Good Store and the esteemed and enduring Trinity Gallery.
Germain Street is widely regarded as one of Uptown Saint John’s most charming areas. Just a short to the waterfront, this one-way public street features sidewalks and, just a couple of blocks from the property, a picturesque tree-lined street showcasing beautifully maintained heritage homes. Paid on-street parking is allowed on Germain Street and city transit stops nearby on King Street.
LOCATION MAP