000 Chocolate Drive, St. Stephen, New Brunswick
Prime Development Opportunity – 12 Acres strategically located in St. Stephen
$249,000
*Notice: Where noted, images on this page are AI-generated for illustration purposes only and may not reflect the property’s true potential. Buyers should independently investigate all land potential and limitations.
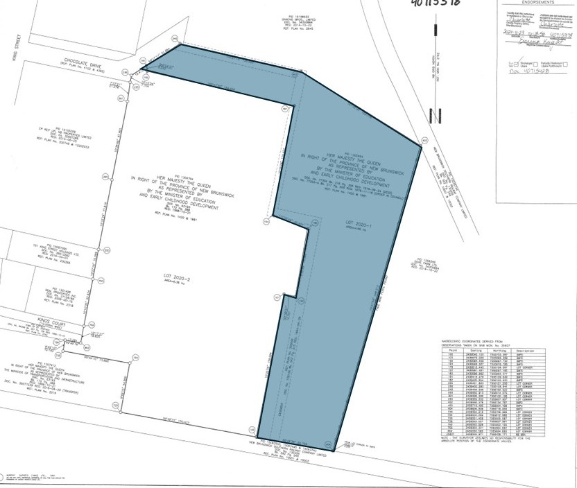
Centrally located off Chocolate Drive, this 12-acre parcel presents an exceptional opportunity for residential development in the growing community of St. Stephen. The property wraps around St. Stephen Elementary School and is within close proximity to major shopping node.
Ideal for a mix of housing types, this site is well-suited for single-family homes, multi-unit residences, or a combination of both. A concept site plan has been prepared, showcasing the potential for a 60-unit multi-residential development, 8 townhomes, green space, and a paved multi-use trail.
Key Features:
✅ Existing infrastructure includes installed power lines and poles
✅ Gravity sewer line already in place within the property
✅ Municipal water infrastructure nearby and available for hookup
✅ Prime location in a high-demand area for housing
Currently zoned Institutional
Additionally, an adjacent 11.6-acre property (PID #01259266) could be secured for an additional $50,000, bringing the total package to 23.6 acres for $299,000. HST is applicable to the sale.
Large, centrally located development sites like this are rare in St. Stephen. Don’t miss this opportunity to invest in the future of the town.
CONCEPT SITE PLAN


LOCATION VISUALS


INTERACTIVE LOCATION MAP
DISCLAIMER *AI-Generated Content & Digital Illustrations Disclaimer
Where specifically identified on this website, certain images have been created using Artificial Intelligence (AI) or digital enhancement. These visuals are provided for illustrative purposes only and are intended to serve as conceptual inspiration rather than a definitive representation of the property’s current state or future possibilities.
Buyer Responsibility & Due Diligence:
– AI-generated images may not accurately represent the true potential or physical constraints of the property.
– All prospective buyers are strongly encouraged to conduct their own thorough investigation into the land’s potential, legal limitations, and zoning requirements.
– We recommend professional on-site inspections and consultation with local authorities to verify the feasibility of any development or land use projects.
The inclusion of these conceptual images does not constitute a legal guarantee, warranty, or promise regarding the property’s eventual appearance or suitability for use.