SUB-LEASE – 99 Germain Street, Saint John, NB
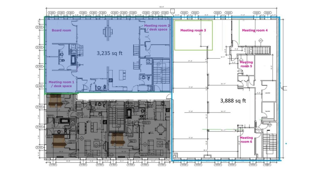
Located in the former Bustins building at 99 Germain Street. 3,235 square foot 3rd floor office suite full of heritage charm and available immediately. Open concept with loft offices/meetings rooms Furniture in place negotiable. Building professionally managed by Historica Properties. This is a sub-lease opportunity. Head-lease expires August 31st, 2023. Long term lease available subject to negotiations.
Can be combined with an adjacent suite for a total of 7,123 sq ft
LEASE RATES: $5,750 per month +HST. Tenant pays for utilities and in-suite cleaning
PHOTO GALLERY






FLOORPLAN
