LEASED 58 King Street, Saint John, New Brunswick
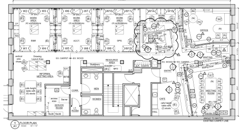
2,932 square feet of professional office space located near the top of King Street. 4th floor elevator access. Space features reception/waiting area, 1 private office, large boardroom, server room, 2 private washrooms and large open area for work stations. Exposed brick within the space gives this office character. Available March 2019
Professionally managed building.
LEASE RATES: $12.00/sq ft (net)
FLOORPLAN
PHOTO GALLERY
