18 King Street, Saint John, NB
PRIME RETAIL STOREFRONT 1,898 sq ft at 18 King Street in CenterBeam Complex

Retail Storefront for Lease. Part of “CenterBeam Place”, a much sought-after location for any business seeking an unparalleled work environment of beauty and efficiency. The complex consists of a city block of heritage buildings built in 1878-1880 and completely restored between 2002-2005.
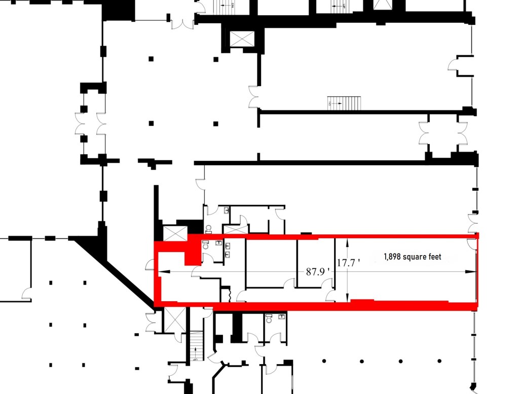
1,898 square feet of leaseable area. Space features large storefront windows with some exposed brick.
Asking rent is $18.00/sq ft (net) + applicable operating costs. Tenant pays own utilities
Strategically located in the heart of uptown in the vicinity of unique boutiques, restaurants, cafes & pubs. Also well positioned to capitalize on cruise ship passengers and other tourists.
FLOORPLAN

LOCATION MAP